07/23
weiterdenken
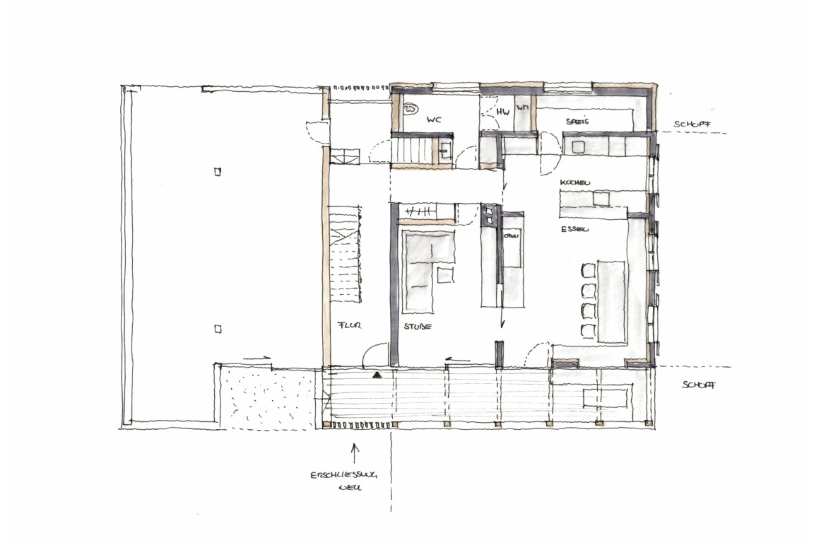
Baukulturelles Erbe
Umbau eines Bregenzerwälderhaus aus dem 16. Jahrhundert
Aufgabe - Entwurf I Baueinreichung
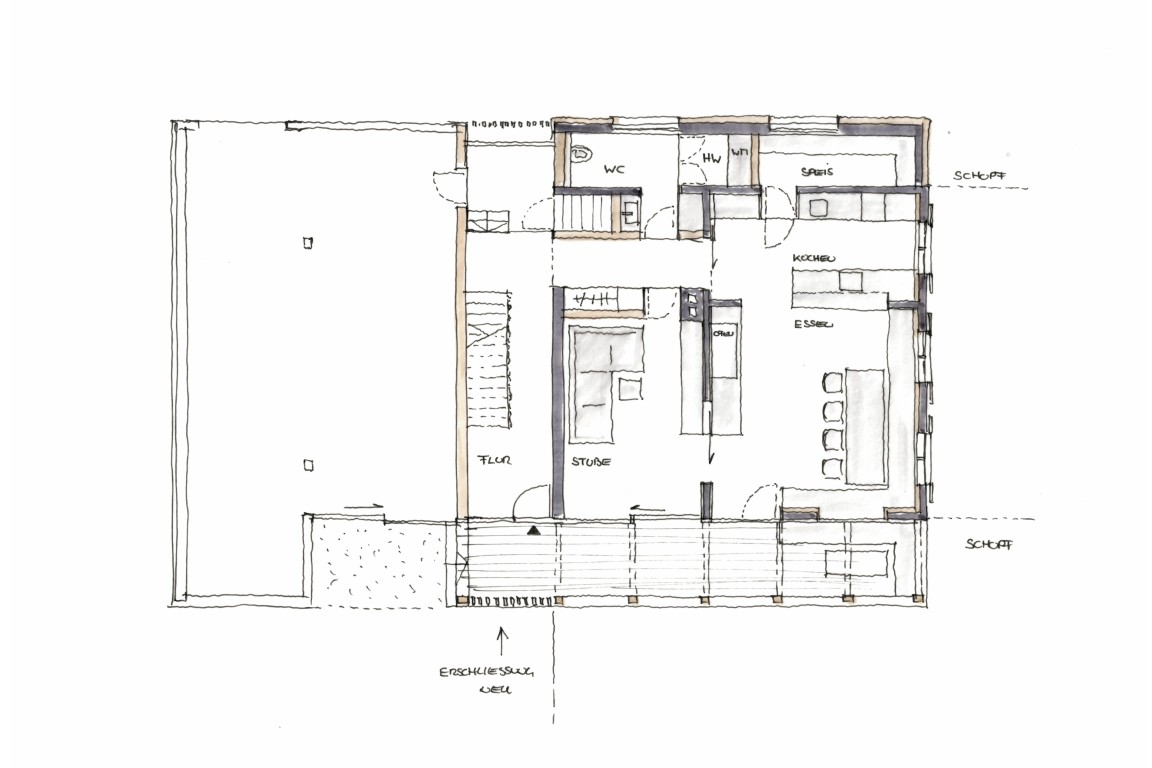
Baukulturelles Erbe
Umbau eines Bregenzerwälderhaus aus dem 16. Jahrhundert
Aufgabe - Entwurf I Baueinreichung